| 微信 : Adelaidehelp 联系邮箱 : [email protected] 开启辅助访问
  • 东区Hamilton Hill项目全新 新房 高端品质 阿德天际线美 ...

    浏览人气 : 6211
    Buchanan Drive, Woodforde 5072 Property Number : 1184425 价格 : $329,900 1 1 1

    Ironfish中文服务

    联系方式 :
    0435 936 853

    看房时间

    看房时间1 : 电话预约

    看房时间2 :

    地理位置
    打印 上一主题 下一主题

    东区Hamilton Hill项目全新 新房 高端品质 阿德天际线美景

    [复制链接]

    本内容为网友发布信息,仅代表原作者观点,不代表本平台立场。


    Kelso精品公寓由南澳著名建筑师Enzo Caroscio设计,充分利用了其位于HamiltonHill的独特地理优势,采用高档材料和配饰建造而成。
    设有一室及两室的户型,有明、暗两种装修色调供您选择,每一套都配有能欣赏街景、公园和城市天际线美景的阳台,充分的利用了其独特的地理优势。
    入户门厅装有绿色的景观墙,给人以温馨的感觉。顶层公寓则安装了落地窗,可观赏东、西、北三面的美景。
    这是一个全新的住宅项目,住在这里,您可优享城市生活的便利,以及Adelaide Hills的宁静氛围。位于山脚下的Hamilton Hill是一个受欢迎的东部城区,为您同时享受城市的便利与田园的美景提供了可能。
    无论您是想去市区享受便利的生活,还是想沉浸在当地的壮丽美景中,Hamilton Hill始终是您温馨的家。
    坐拥阿德莱德的天际线和其周围城区的美景。
    物业类型:全新 高级 公寓
    公寓名:Kelso
    位置: 309/157 Buchanan Drive Woodforde 5072
    建筑面积: 50㎡±
    卧室 1
    浴室1
    车位 1
    售价$316,900


    中文咨询、看房联系0435936 853
    或扫二维码 微信咨询


    免责声明:WhileWoodforde JV Pty Ltd已尽最大努力确保以上信息的准确性、完整性和及时性,但并不代表或担保以上信息均为准确无误。图片和规划仅供参考,有变化可能。任何相关方如因使用该信息而受到直接或间接损失,WoodfordeJV Pty Ltd对此均不承担任何责任。RLA 204004




    项目介绍:
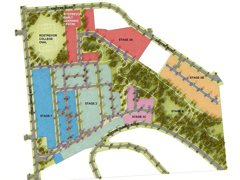
    Hamilton Hill(汉密尔顿山庄)品质非凡,带着经典的苏格兰风情及魅力。位于东部城区,是一个全新的总体规划社区,集都市的繁华和和山间的静谧为一体,为您提供两全其美的生活。
    该社区占地19公顷,将打造约440套房产,包括许多土地、购地建房项目、精美联排别墅和精品公寓(包括顶层奢华公寓)。
    坐拥阿德莱德的天际线
    背靠阿德莱德天然绿色氧吧
    尽享高档情调生活品质
    紧邻精英学校
    项目状态:在建中
    项目属性:一手房新房公寓
    开发商:南澳Starfish (屡获全澳住宅开发大奖)
    建筑设计师:Enzo Caroscio (澳洲著名设计师,南澳最佳建筑师大奖)
    售价:土地 $320,000起, 精品别墅$479,900起 设计师公寓$316,900起
    项目位置:Woodforde, South Australia 5072
    市政厅:Adelaide Hills Council
    距离CBD:10km±
    特色一览
    • 坐拥阿德莱德的天际线
    • 背靠阿德莱德天然绿色氧吧
    • 尽享高档情调生活品质
    • 50,000平方米天然保护区公园
    • 用心规划的步行道和自行车道
    • 人性化的社区基础设施
    • 位于东区,交通便利
    • 紧邻精英学校:
    • Rostrevor College\ MagillSchool\ Stradbroke School\
    • Norwood Morialta High School\ St Joseph's School
    • 邻近高档生活设施
    • 便捷可至中央商务区、购物区、咖啡厅区
    • 附近的Morialta Conservation公园和步行道
    • 您可在此尽享田园般的理想生活


    坐拥阿德莱德的天际线,背靠阿德莱德天然绿色氧吧,尽享高档情调生活品质 紧邻精英学校


    中文咨询、看房联系0435936 853
    或扫二维码 微信咨询






    image5.jpg (282.06 KB, 下载次数: 196)

    image5.jpg

    BBS提醒: 请避免提前支付订金、押金等任何费用,请与对方当面沟通,确认资质并看清条款。谨防上当受骗。

    免责声明: 本网站所提供的信息,只供参考之用。本网站不保证信息的准确性、有效性、及时性和完整性。本网站及其雇员一概毋须以任何方式就任何信息传递或传送的失误、不准确或错误,对用户或任何其他人士负任何直接或间接责任。在法律允许的范围内,本网站在此声明,不承担用户或任何人士就使用或未能使用本网站所提供的信息或任何链接所引致的任何直接、间接、附带、从属、特殊、惩罚性或惩戒性的损害赔偿。

    收藏收藏 顶 踩
    回复

    使用道具 举报

    您需要登录后才可以回帖 登录 | 注册

    本版积分规则

    其他网友还看了 ...

    Copyright @ 2022 AdelaideBBS.com. All rights reserved. User Agreement

    客服号

    公众号