| 微信 : Adelaidehelp 联系邮箱 : [email protected] 开启辅助访问
  • Adelaide CBD

    浏览人气 : 5854
    50/237 Wakefield Street ADELAIDE SA Property Number : 1282432 价格 : 430,000 - 440,000 周六11-11,30am open. 8月10号 2 2 1

    Isse

    联系方式 :
    0420562878

    看房时间

    看房时间1 : 11-11,30am Saturday, 10 ug

    看房时间2 :

    地理位置
    打印 上一主题 下一主题

    Adelaide CBD

    [复制链接]

    本内容为网友发布信息,仅代表原作者观点,不代表本平台立场。

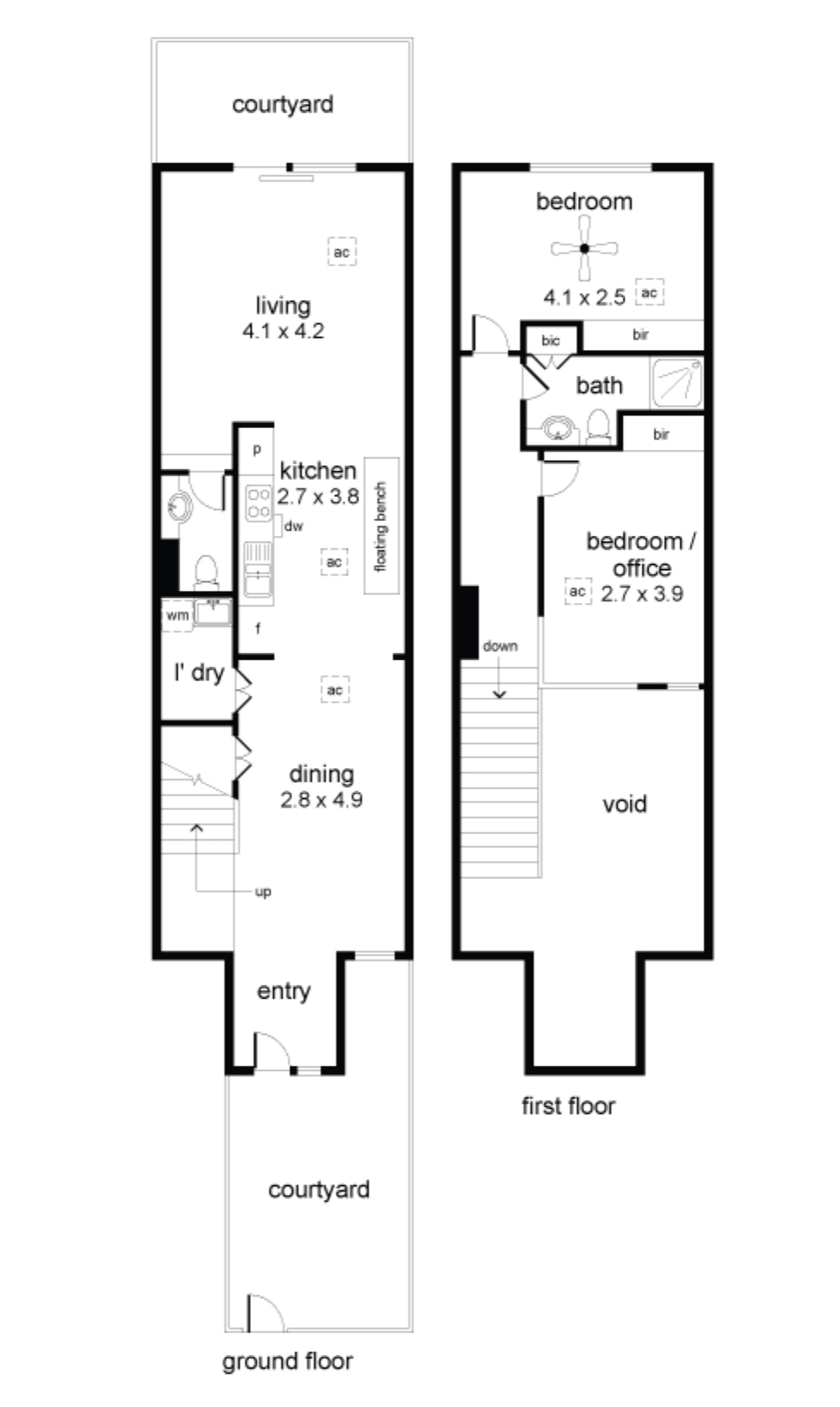
    这间别致的仓库式公寓是阿德莱德最好的建筑楼之一,距离Hutt Street精致餐厅,中央市场,一流的学校,Parklands和中央商务区仅有几步之遥。

    功能包括:
    •宽敞的起居区,双层调高天花板
    •开放式厨房配有可移动岛台,不锈钢器具和洗碗机
    •2个私人庭院,非常适合露天用餐
    •设备齐全的现代化浴室,楼下有额外的卫生间
    •安全停车场
    •装修细节精致
    •循环空调
    •独立洗衣房
    •安全呼叫门铃系统


    03.jpg (1.02 MB, 下载次数: 180)

    03.jpg

    02.jpg (921.54 KB, 下载次数: 183)

    02.jpg

    04.jpg (973.61 KB, 下载次数: 184)

    04.jpg

    06.jpg (1.09 MB, 下载次数: 172)

    06.jpg

    05.jpg (1.06 MB, 下载次数: 175)

    05.jpg

    07.jpg (986.81 KB, 下载次数: 170)

    07.jpg

    09.jpg (1018.32 KB, 下载次数: 180)

    09.jpg

    11.jpg (861.02 KB, 下载次数: 177)

    11.jpg

    10.jpg (1.03 MB, 下载次数: 187)

    10.jpg

    13.jpg (877.84 KB, 下载次数: 171)

    13.jpg

    14.jpg (1.43 MB, 下载次数: 179)

    14.jpg

    01.jpg (1.42 MB, 下载次数: 189)

    01.jpg

    WAK502-S floorplan1.jpg-2 copy.jpg (219.57 KB, 下载次数: 168)

    WAK502-S floorplan1.jpg-2 copy.jpg

    IMG_3485.jpg (1.72 MB, 下载次数: 190)

    IMG_3485.jpg

    12.jpg (1.49 MB, 下载次数: 181)

    12.jpg

    IMG_3455.jpg (1.43 MB, 下载次数: 170)

    IMG_3455.jpg

    08.jpg (1.12 MB, 下载次数: 165)

    08.jpg

    BBS提醒: 请避免提前支付订金、押金等任何费用,请与对方当面沟通,确认资质并看清条款。谨防上当受骗。

    免责声明: 本网站所提供的信息,只供参考之用。本网站不保证信息的准确性、有效性、及时性和完整性。本网站及其雇员一概毋须以任何方式就任何信息传递或传送的失误、不准确或错误,对用户或任何其他人士负任何直接或间接责任。在法律允许的范围内,本网站在此声明,不承担用户或任何人士就使用或未能使用本网站所提供的信息或任何链接所引致的任何直接、间接、附带、从属、特殊、惩罚性或惩戒性的损害赔偿。

    收藏收藏 顶 踩
    回复

    使用道具 举报

    您需要登录后才可以回帖 登录 | 注册

    本版积分规则

    其他网友还看了 ...

    Copyright @ 2022 AdelaideBBS.com. All rights reserved. User Agreement

    客服号

    公众号