| 微信 : Adelaidehelp 联系邮箱 : [email protected] 开启辅助访问
  • 已租【Harcourts美家】Holden Hill全新三房两卫别墅整租

    浏览人气 : 2036
    16 Gordini Crescent, Holden Hill, SA 5088 Property Number : 1475236 价格 : 已租 3 2 2

    Gloria

    联系方式 :
    0430043003

    看房时间

    看房时间1 : Saturday 15 July 12:00 pm–12:20 pm

    看房时间2 :

    地理位置
    打印 上一主题 下一主题

    已租【Harcourts美家】Holden Hill全新三房两卫别墅整租

    [复制链接]

    本内容为网友发布信息,仅代表原作者观点,不代表本平台立场。

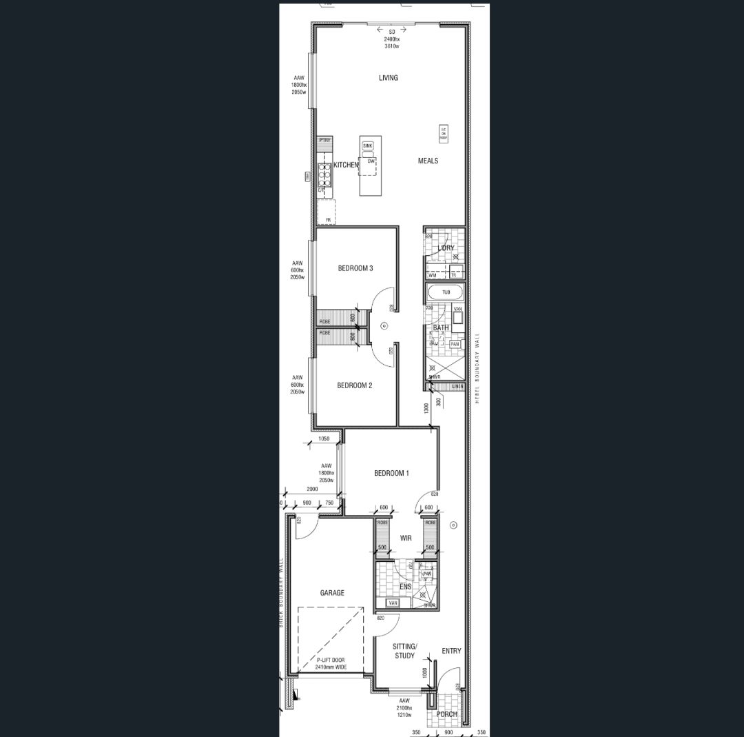
    全新建成!三室两卫两车位别墅位于Holden Hill便利中心,靠近游乐场。步行即可到达公共交通和购物中心。距离阿德莱德中央商务区仅约 20 分钟车程,

    特色包括:
    -宽敞的开放式起居室和现代化厨房,配有燃气灶具、烤箱和洗碗机
    -卧室均配有内置衣柜
    -主卧配有独立卫浴与步入式衣帽间-独立洗衣房
    -全屋中央空调
    -低维护后院

    *租期:12 个月优先
    *押金:4 周租金
    *宠物可议
    *无家具
    线申请链接(请在浏览器中打开):https://www.realestate.com.au/property-house-sa-holden+hill-437156024


    有意联系 Gloria(加微信请备注地址)

    640 (5).png (67.4 KB, 下载次数: 76)

    640 (5).png

    640 (7).png (78.09 KB, 下载次数: 75)

    640 (7).png

    640 (11).png (113.71 KB, 下载次数: 76)

    640 (11).png

    BBS提醒: 请避免提前支付订金、押金等任何费用,请与对方当面沟通,确认资质并看清条款。谨防上当受骗。

    免责声明: 本网站所提供的信息,只供参考之用。本网站不保证信息的准确性、有效性、及时性和完整性。本网站及其雇员一概毋须以任何方式就任何信息传递或传送的失误、不准确或错误,对用户或任何其他人士负任何直接或间接责任。在法律允许的范围内,本网站在此声明,不承担用户或任何人士就使用或未能使用本网站所提供的信息或任何链接所引致的任何直接、间接、附带、从属、特殊、惩罚性或惩戒性的损害赔偿。

    收藏收藏 顶 踩
    回复

    使用道具 举报

    您需要登录后才可以回帖 登录 | 注册

    本版积分规则

    其他网友还看了 ...

    Copyright @ 2022 AdelaideBBS.com. All rights reserved. User Agreement

    客服号

    公众号