| 微信 : Adelaidehelp 联系邮箱 : [email protected] 开启辅助访问
  • 【Harcourts美家|出售】阿德莱德CBD市中心3房2卫1车位 ...

    浏览人气 : 3417
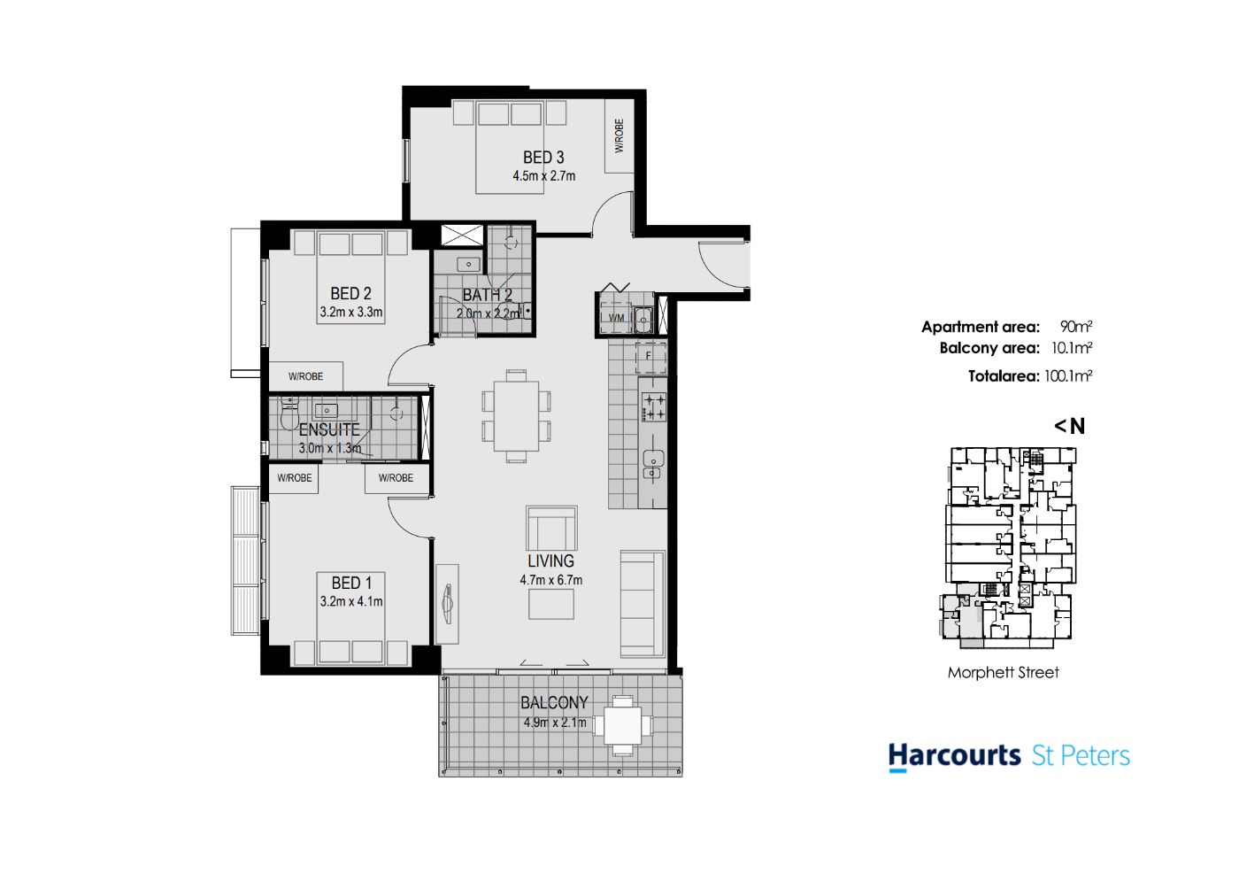
    180 Morphett Street, Adelaide, SA 5000 Property Number : 1486579 价格 : $680,000-$700,000 3 2 1

    William Bai & Susu

    联系方式 :
    0402427738 & 0452477783

    看房时间

    看房时间1 : 请联系中介

    看房时间2 :

    地理位置
    打印 上一主题 下一主题

    【Harcourts美家|出售】阿德莱德CBD市中心3房2卫1车位 豪华公寓

    [复制链接]

    本内容为网友发布信息,仅代表原作者观点,不代表本平台立场。

    阿德莱市中心3房2卫1车位的现代豪华公寓,
    提供的不仅仅是一个家,
    更是一种惬意的生活方式。


    -3房+ 2卫+1车位
    -总面积100㎡
    -价格$680,000-$700,000

    该公寓坐落在市中心,拥有三间宽敞的卧室和两间设计完美的浴室,完美融合了现代优雅和豪华舒适。

    步入主卧室,配有私人浴室,为您提供放松身心的宁静享受。 其余的卧室同样吸引人,可作为客房或家庭办公室。

    开放式起居和用餐区自然光线充足,营造出温馨的氛围。 时尚的厨房配有高端电器和充足的存储空间,是烹饪爱好者的理想所需。

    一个室内车库空间,解决了停车的麻烦。 100 平方米的布局将风格与实用性完美融合,适合日常生活和举办聚会。从充满活力的餐馆到便捷的公共交通选择,城市生活的魅力触手可及。

    ✨功能特点

    • 在市中心体验现代生活。
    • 享受三间卧室和两间现代化浴室的舒适。
    • 在私人套间内放松身心,并设有额外的房间供客人或工作使用。
    • 自然光洒满开放式空间,营造出温馨宜人的氛围。
    • 厨房配备高端电器和充足的存储空间。
    • 附带的车库提供无忧的停车便利。
    • 这间100 平方米的公寓轻松地将功能性和风格融为一体。
    • 享受城市生活,轻松前往餐馆、交通和便利设施。

    有意请联系William 或 Susu


    BBS提醒: 请避免提前支付订金、押金等任何费用,请与对方当面沟通,确认资质并看清条款。谨防上当受骗。

    免责声明: 本网站所提供的信息,只供参考之用。本网站不保证信息的准确性、有效性、及时性和完整性。本网站及其雇员一概毋须以任何方式就任何信息传递或传送的失误、不准确或错误,对用户或任何其他人士负任何直接或间接责任。在法律允许的范围内,本网站在此声明,不承担用户或任何人士就使用或未能使用本网站所提供的信息或任何链接所引致的任何直接、间接、附带、从属、特殊、惩罚性或惩戒性的损害赔偿。

    收藏收藏 顶 踩
    回复

    使用道具 举报

    您需要登录后才可以回帖 登录 | 注册

    本版积分规则

    其他网友还看了 ...

    Copyright @ 2022 AdelaideBBS.com. All rights reserved. User Agreement

    客服号

    公众号