| 微信 : Adelaidehelp 联系邮箱 : [email protected] 开启辅助访问
  • 【Harcourts美家地产|出售】富人区3房2.5卫稀缺双学区靓 ...

    浏览人气 : 2509
    33 Avenue road, Frewville, SA 5063 Property Number : 1509809 价格 : 请联系中介 3 2.5 1

    Susu

    联系方式 :
    0452 477 783

    看房时间

    看房时间1 :

    看房时间2 :

    地理位置
    打印 上一主题 下一主题

    【Harcourts美家地产|出售】富人区3房2.5卫稀缺双学区靓房!

    [复制链接]

    本内容为网友发布信息,仅代表原作者观点,不代表本平台立场。

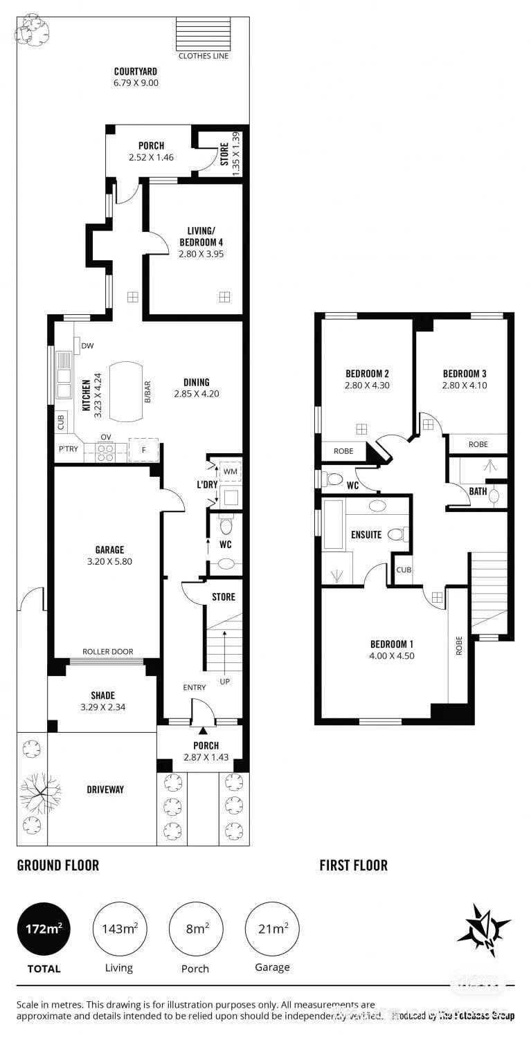
    富人区的优质学区房!School zone包括排名第一的中学Glenunga和排名第一的小学Linden Park。
    步行可到达Burnside Shopping village, Frewville Foodland。
    靠近Pembroke等顶级私校,离市中心仅有4公里。可以给您带来便捷舒适的生活方式。


    物业特色:

    3房+2.5卫+1车库+1车位+小院
    土地面积173平米
    套内面积172平米
    南北通透实用户型
    宽敞明亮朝北大主卧套房
    2个卫生间,3个toilet满足全家需要
    楼上另外两间卧室均可摆下双人床
    一楼独立living room也可用作第四个卧室
    开放式厨房,洗衣房,卫生间,遥控车库,易打理小院


    有意请联系Susu(微信备注地址)


    BBS提醒: 请避免提前支付订金、押金等任何费用,请与对方当面沟通,确认资质并看清条款。谨防上当受骗。

    免责声明: 本网站所提供的信息,只供参考之用。本网站不保证信息的准确性、有效性、及时性和完整性。本网站及其雇员一概毋须以任何方式就任何信息传递或传送的失误、不准确或错误,对用户或任何其他人士负任何直接或间接责任。在法律允许的范围内,本网站在此声明,不承担用户或任何人士就使用或未能使用本网站所提供的信息或任何链接所引致的任何直接、间接、附带、从属、特殊、惩罚性或惩戒性的损害赔偿。

    收藏收藏 顶 踩
    回复

    使用道具 举报

    您需要登录后才可以回帖 登录 | 注册

    本版积分规则

    其他网友还看了 ...

    Copyright @ 2022 AdelaideBBS.com. All rights reserved. User Agreement

    客服号

    公众号