| 微信 : Adelaidehelp 联系邮箱 : [email protected] 开启辅助访问
  • 【Harcourts美家地产|出售】将历史遗产与现代生活完美结 ...

    浏览人气 : 2566
    25 Stephen Tce, St Peters, SA 5069 Property Number : 1514882 价格 : 拍卖 4 2 4

    Gloria Ye / William Bai

    联系方式 :
    0430043003/0402427738

    看房时间

    看房时间1 : 2024/04/06周六11:30 - 12:00

    看房时间2 : 2024/04/07周日11:30 - 12:00

    地理位置
    打印 上一主题 下一主题

    【Harcourts美家地产|出售】将历史遗产与现代生活完美结合的蓝石别墅!

    [复制链接]

    本内容为网友发布信息,仅代表原作者观点,不代表本平台立场。

    优雅的传统遗产与现代可能性在这座蓝石别墅中相遇


    拍卖 - 2024年7月4日中午12:00现场举行


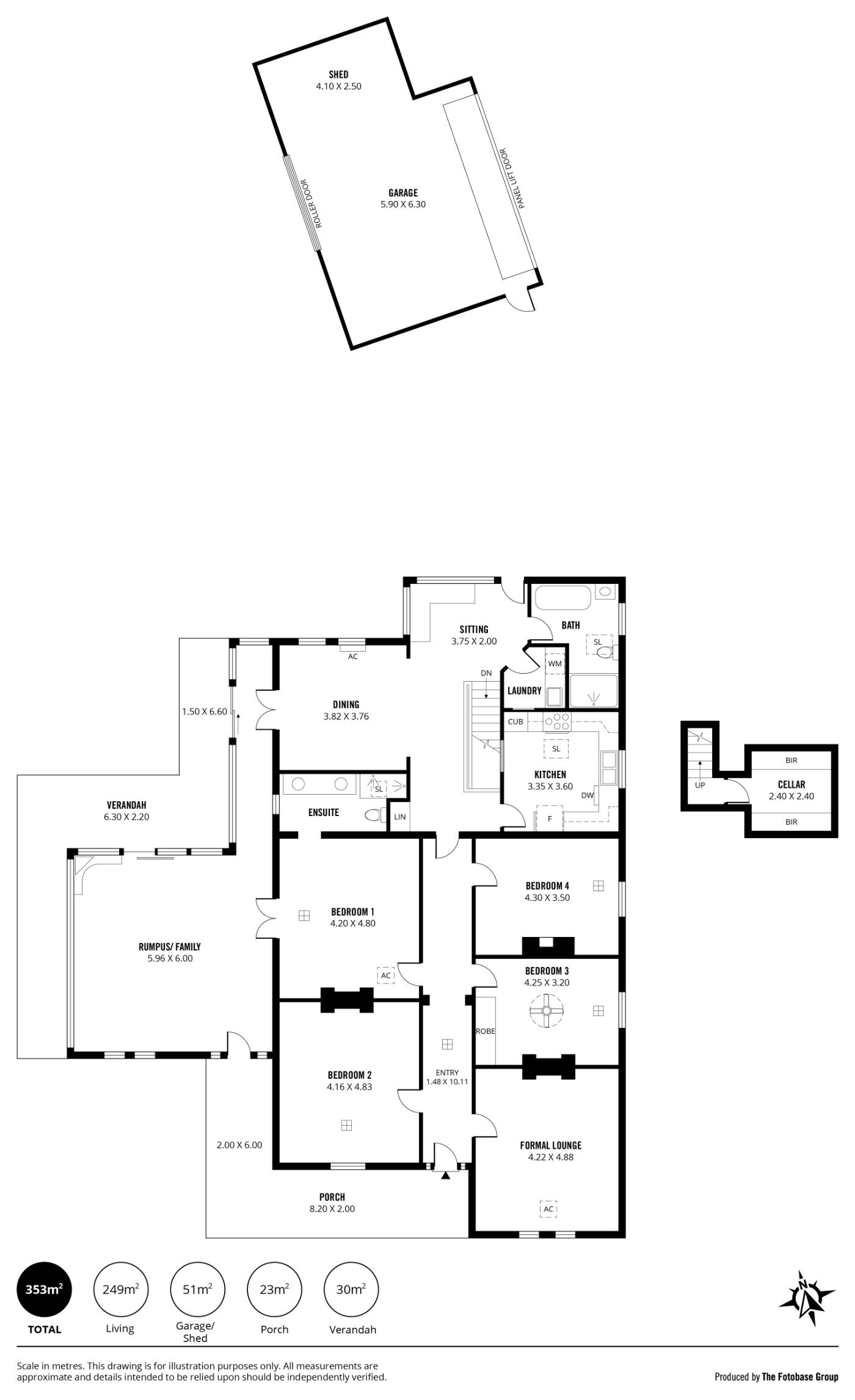
    坐落于约1016平方米的宽敞土地上,这座20世纪的蓝石别墅拥有一个优雅的门廊和两个入口,是未来升级改造和风格翻新的理想之选。
    四个宽敞的卧室使这个家随着时间的推移愈发引人注目,为一家人的成长提供了充裕空间。它隐匿在阿德莱德最优越的街区之一,未来的日子里潜力无限。
    房屋的坚固结构与前后贯通的引人注目的石墙外观相得益彰。高高的装饰性天花板、铺有Jarrah木和凉爽石材的地板、彩色玻璃窗细节以及精心打造的壁炉,共同赋予了这个住所高贵的气质和持久的吸引力。
    这座房屋极具灵活性。如果您不需要正式的客厅,还可以重新规划出多达五个卧室。一个宽敞的厨房通向明亮的朝北家庭区,再延伸至一个大型的阳光房,巧妙地将原始的石墙作为室内的一个亮点。设想一下,家庭通过无缝的开放式布局扩展,探索一个秘密酒窖的魅力,拥有一个双车库满足车迷的梦想,靠近The Parade、市中心和顶尖学校,你将不会想离开这个家。
    • 设施齐全的厨房,配备了Smeg 900mm立式炉灶、洗碗机、反射式挡板、双水槽和实木工作台。
    • 全屋通过管道空调实现冷暖自如。
    • 主浴室通过天窗引入自然光,配有复古风格的狮脚浴缸。
    • 主卧套间拥有双洗手池的花岗岩台面和时尚的金色水龙头。
    • 维护简便的一尘不染的花园。
    • 家中提供充足的储物空间。
    • 安全系统。
    • 后院是一片茂盛的草坪,有一个适合儿童玩耍的小屋和一个迷人的石制庭院。
    • 通过Fourth Lane的独特双向通道,能够停放多辆车。
    • 划入东阿德莱德学校和阿德莱德植物高中学区。
    • 靠近 St Peters College, Wilderness School 和 Prince Alfred College。
    • 步行即可到达Torrens Linear Park步道、多个购物中心、当地面包店以及多种公共交通连接等便利设施。
    • 预期租金收益$1350-$1450/每周
    有意请联系Gloria或William(微信备注地址)





    _MG_0134a.jpg (321.43 KB, 下载次数: 221)

    _MG_0134a.jpg

    _MG_0043.jpg (147.97 KB, 下载次数: 217)

    _MG_0043.jpg

    _MG_0054a.jpg (134.3 KB, 下载次数: 209)

    _MG_0054a.jpg

    _MG_0100.jpg (185.37 KB, 下载次数: 213)

    _MG_0100.jpg

    _MG_0112a.jpg (330.47 KB, 下载次数: 216)

    _MG_0112a.jpg

    _MG_0115a.jpg (286.46 KB, 下载次数: 217)

    _MG_0115a.jpg

    _MG_0124a.jpg (289.19 KB, 下载次数: 206)

    _MG_0124a.jpg

    _MG_0128.jpg (136.88 KB, 下载次数: 217)

    _MG_0128.jpg

    _MG_0143a.jpg (191.96 KB, 下载次数: 218)

    _MG_0143a.jpg

    _MG_9981a.jpg (137.75 KB, 下载次数: 227)

    _MG_9981a.jpg

    _MG_9984.jpg (144.49 KB, 下载次数: 208)

    _MG_9984.jpg

    _MG_9997.jpg (136.53 KB, 下载次数: 208)

    _MG_9997.jpg

    Ic_890261.jpg (69.88 KB, 下载次数: 205)

    Ic_890261.jpg

    BBS提醒: 请避免提前支付订金、押金等任何费用,请与对方当面沟通,确认资质并看清条款。谨防上当受骗。

    免责声明: 本网站所提供的信息,只供参考之用。本网站不保证信息的准确性、有效性、及时性和完整性。本网站及其雇员一概毋须以任何方式就任何信息传递或传送的失误、不准确或错误,对用户或任何其他人士负任何直接或间接责任。在法律允许的范围内,本网站在此声明,不承担用户或任何人士就使用或未能使用本网站所提供的信息或任何链接所引致的任何直接、间接、附带、从属、特殊、惩罚性或惩戒性的损害赔偿。

    收藏收藏 顶 踩
    回复

    使用道具 举报

    您需要登录后才可以回帖 登录 | 注册

    本版积分规则

    其他网友还看了 ...

    Copyright @ 2022 AdelaideBBS.com. All rights reserved. User Agreement

    客服号

    公众号