| 微信 : Adelaidehelp 联系邮箱 : [email protected] 开启辅助访问
  • 已售【Harcourts美家|出售】Darlington稀缺五房家庭住宅 ...

    浏览人气 : 3842
    9 Hawkview Close, Darlington, SA 5047 Property Number : 1562516 价格 : $1,700,000 5 2 6

    William Bai

    联系方式 :
    0402427738

    看房时间

    看房时间1 :

    看房时间2 :

    地理位置
    打印 上一主题 下一主题

    已售【Harcourts美家|出售】Darlington稀缺五房家庭住宅,潜力无限

    [复制链接]

    本内容为网友发布信息,仅代表原作者观点,不代表本平台立场。

    指导价:$1,700,000

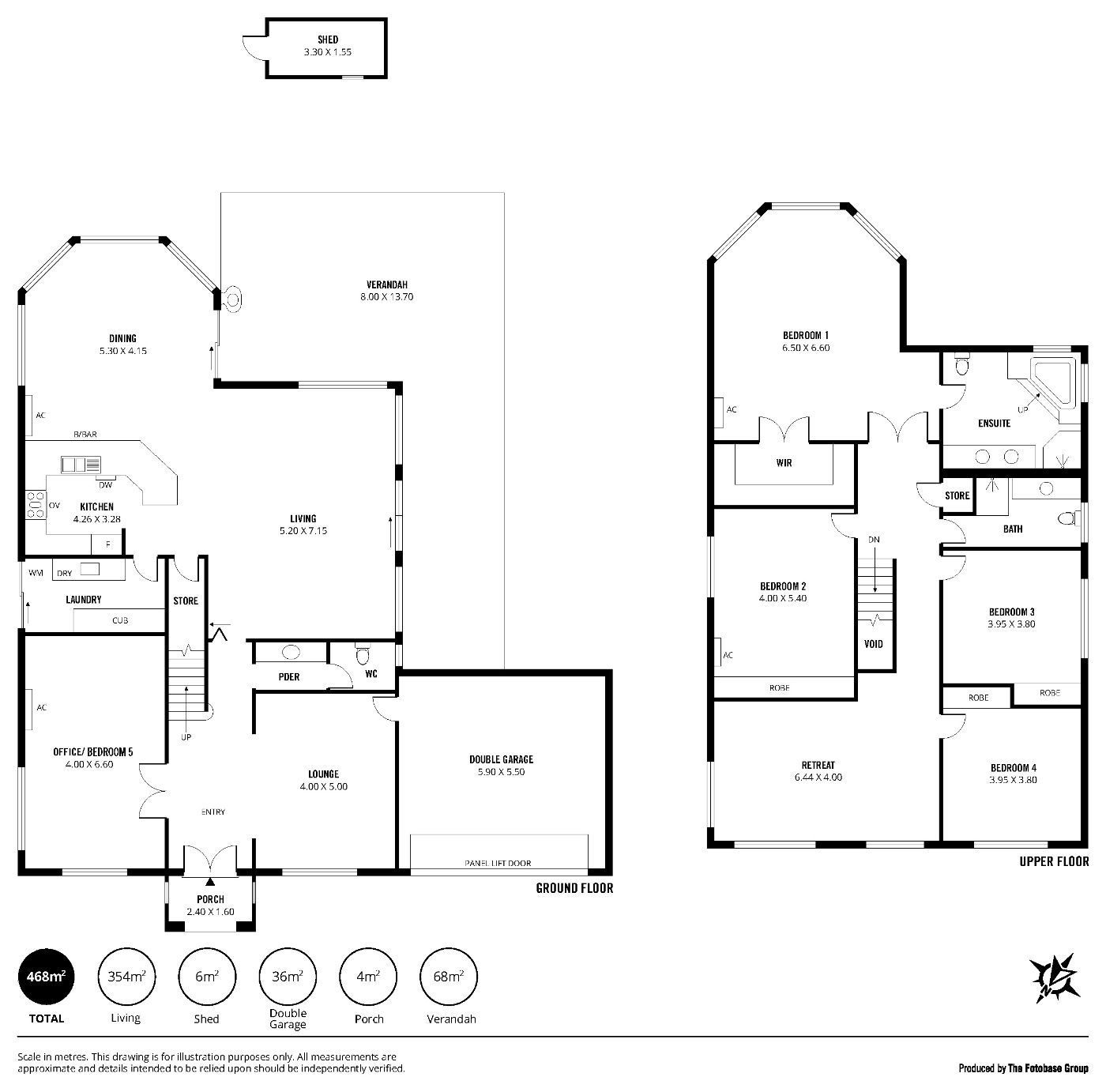
    这座优雅的双层住宅坐落于幽静的环巷深处,完美融合了格调、空间与舒适。专为家庭生活打造,五间宽敞卧室中包含配备步入式衣帽间、独立卫浴并坐拥壮丽景色的主卧。
    底层另设可用作客房或书房的灵活空间。
    多层次的起居区域包括正式客厅与餐厅、开放式家庭厅、楼上休闲区以及连通阳台的宽敞娱乐室,完美满足休憩与待客需求。

    现代厨房配备高品质电器、充足储物空间及大型步入式食品储藏室,轻松应对烹饪需求。用餐区与家庭厅流畅衔接,更显空间开阔。户外精心设计的景观花园与架空阳台为聚会提供了绝佳场地。其他亮点包括带内通道的双车位车库及独立洗衣房。

    这处非凡宅邸雄踞黄金地段,坐拥昼夜变幻的城市海景画卷,毗邻O'Halloran Hill Recreation Reserve,尽享户外活动之便。
    该尊贵地段每块土地皆独一无二,凸显此物业的稀缺价值。

    • 五间宽敞卧室,主卧带套卫及步入式衣帽间
    • 底层多功能书房/客房
    • 多层次起居空间:正式客厅、家庭厅、娱乐室、楼上休闲区
    • 现代风格厨房配备高端电器及充足储物空间
    • 开放式用餐区与家庭厅无缝衔接
    • 景观绝佳的宽敞露台
    • 精心设计的前后庭院景观
    • 带内通道的双车位车库
    • 独立洗衣房
    • 壮丽的城市与海景风光
    • 临近休闲保护区
    • 稀缺地块
    • 便捷抵达大学、购物中心、学校、交通枢纽及海滨区域

    有意请联系William

    image.png (163.37 KB, 下载次数: 370)

    image.png

    BBS提醒: 请避免提前支付订金、押金等任何费用,请与对方当面沟通,确认资质并看清条款。谨防上当受骗。

    免责声明: 本网站所提供的信息,只供参考之用。本网站不保证信息的准确性、有效性、及时性和完整性。本网站及其雇员一概毋须以任何方式就任何信息传递或传送的失误、不准确或错误,对用户或任何其他人士负任何直接或间接责任。在法律允许的范围内,本网站在此声明,不承担用户或任何人士就使用或未能使用本网站所提供的信息或任何链接所引致的任何直接、间接、附带、从属、特殊、惩罚性或惩戒性的损害赔偿。

    收藏收藏 顶 踩
    回复

    使用道具 举报

    您需要登录后才可以回帖 登录 | 注册

    本版积分规则

    其他网友还看了 ...

    Copyright @ 2022 AdelaideBBS.com. All rights reserved. User Agreement

    客服号

    公众号