登录
找回密码
注册
|
微信 :
Adelaidehelp
联系邮箱 :
[email protected]
开启辅助访问
请
登录
后使用快捷导航
没有帐号?
注册
地产首页
Home
买房
Buy
整租
Rent
商业房产
Commercial
生意买卖
Business
已售
Sold
分租
Share
专家观点
Experts
资讯
News
我爱我家
Forum
财经金融
Forex
服务信息
Service
BBS 知道
Help
每日摇摇乐
AdelaideBBS.com_阿德莱德中文网_南澳华人论坛_阿德莱德租房_工作_交友_同城 AdelaideBBS.com中文网
»
阿村论坛
›
地产频道
›
我爱我家
›
您完美的第一个家或第一套投资房!劲爆新低价! 干净无 ...
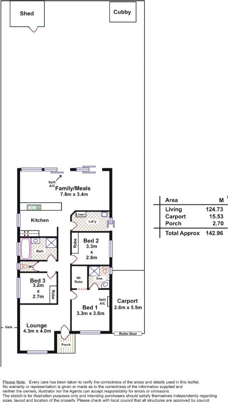
您完美的第一个家或第一套投资房!劲爆新低价! 干净无瑕,共有三间不小尺寸的卧室
查看数:
3189
|
评论数:
1
|
收藏
0
关灯
|
提示:支持键盘翻页<-左 右->
帖子模式
组图打开中,请稍候......
收藏
0
顶
0
踩
0
蓝胖子
发布时间:
15-6-2012 19:59
正文摘要:
回复
linming
发表于
15-6-2012 22:58:27
这是哪个区啊?
BBS微信公众号
BBS微信客服号
BBS微信公众2号
BBS微信公众3号
客服号
公众号
返回顶部
返回列表