| 微信 : Adelaidehelp 联系邮箱 : [email protected] 开启辅助访问
  • 已租【Harcourts美家】Mawson Lakes南澳大学附近两室一 ...

    浏览人气 : 2467
    75 MACMILLAN AVENUE, Mawson Lakes, SA 5095 Property Number : 1597144 价格 : 已租 2 1 1

    Kyle

    联系方式 :
    请联系微信

    看房时间

    看房时间1 :

    看房时间2 :

    地理位置
    打印 上一主题 下一主题

    已租【Harcourts美家】Mawson Lakes南澳大学附近两室一卫一车位联排整租

    [复制链接]

    本内容为网友发布信息,仅代表原作者观点,不代表本平台立场。

    目前租约中,2026年1月6日后可入住。

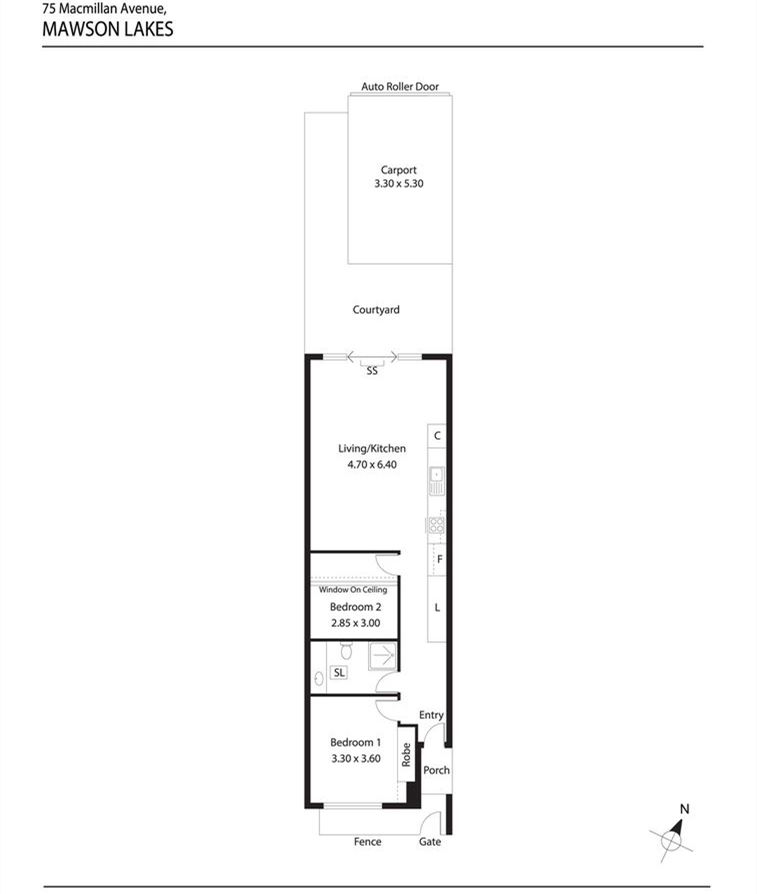
    步行即可抵达火车产公交站、商店和餐馆,生活便利环境好。距UNI SA仅2公里,距离阿德莱德CBD仅20分钟车程。非常适合学生/务工人员。


    主要特点:
    理想地理位置: 距离莫森湖购物中心仅数分钟路程,驱车短距离即可到达,毗邻当地公园和莫森湖火车站,便于通勤至CBD。

    低维护的单层联排别墅: 这座别墅拥有两间宽敞的卧室,现代化浴室以及采光充足的开放式起居/现代厨房。

    分体式空调
    太阳能热水系统
    现代化厨房,配备燃气灶和充足橱柜空间
    客厅木地板+卧室地毯
    自动卷帘门的单车库

    租期:12个月
    押金:4周房租
    无家具


    在线申请连接:https://www.realestate.com.au/property-townhouse-sa-mawson+lakes-438190104

    有意请联系Kyle:













    BBS提醒: 请避免提前支付订金、押金等任何费用,请与对方当面沟通,确认资质并看清条款。谨防上当受骗。

    免责声明: 本网站所提供的信息,只供参考之用。本网站不保证信息的准确性、有效性、及时性和完整性。本网站及其雇员一概毋须以任何方式就任何信息传递或传送的失误、不准确或错误,对用户或任何其他人士负任何直接或间接责任。在法律允许的范围内,本网站在此声明,不承担用户或任何人士就使用或未能使用本网站所提供的信息或任何链接所引致的任何直接、间接、附带、从属、特殊、惩罚性或惩戒性的损害赔偿。

    收藏收藏 顶 踩
    回复

    使用道具 举报

    您需要登录后才可以回帖 登录 | 注册

    本版积分规则

    其他网友还看了 ...

    Copyright @ 2022 AdelaideBBS.com. All rights reserved. User Agreement

    客服号

    公众号