| 微信 : Adelaidehelp 联系邮箱 : [email protected] 开启辅助访问
  • 已租【Harcourts美家】Salisbury North三室别墅整租

    浏览人气 : 2112
    13 Norsworthy Avenue, Salisbury North, SA 5108 Property Number : 1599397 价格 : 已租 3 1 4

    Kyle

    联系方式 :
    0426020421

    看房时间

    看房时间1 : Friday 12 December From 4:10–4:40 pm

    看房时间2 :

    地理位置
    打印 上一主题 下一主题

    已租【Harcourts美家】Salisbury North三室别墅整租

    [复制链接]

    本内容为网友发布信息,仅代表原作者观点,不代表本平台立场。

    这套温馨实用的住宅位于安静、适合家庭居住的街区,周边生活设施齐全,交通便利,是家庭居住的理想选择。
    位置紧邻 Waterloo Corner Road 与 Whites Road,轻松连接周边城区,并可通过便捷的公共交通在约 30 分钟内抵达阿德莱德市中心。
    周边教育资源丰富,步行即可到达 Lake Windemere School,附近还有 Salisbury North Primary School 以及多家幼儿园和托儿中心,非常适合有孩子的家庭。医疗服务可前往 Whites Road Medical Centre,而日常购物则可在距此不远的 Parabanks Shopping Centre 轻松解决。喜爱户外活动的住户还可在附近的公园、游乐场及 Salisbury North Football Club 度过休闲时光。

    物业亮点包括:

    • 车棚停车
    • 大型储物棚 / 小型工作
    • 雨水收集罐
    • 经过翻新的现代化浴室
    功能齐全的厨房带充足储物
    • 宽敞后院 + 花园区域
    • 户外遮棚,可用于休闲或招待
    • 管道制冷 + 分体式空调
    • 三间卧室(其中两间带入墙式衣柜)

    租赁信息
    租期:优先考虑12个月合约
    押金:4周房租
    水费:租客需支付用量及供应费用
    家具:无家具

    有意请联系Kyle





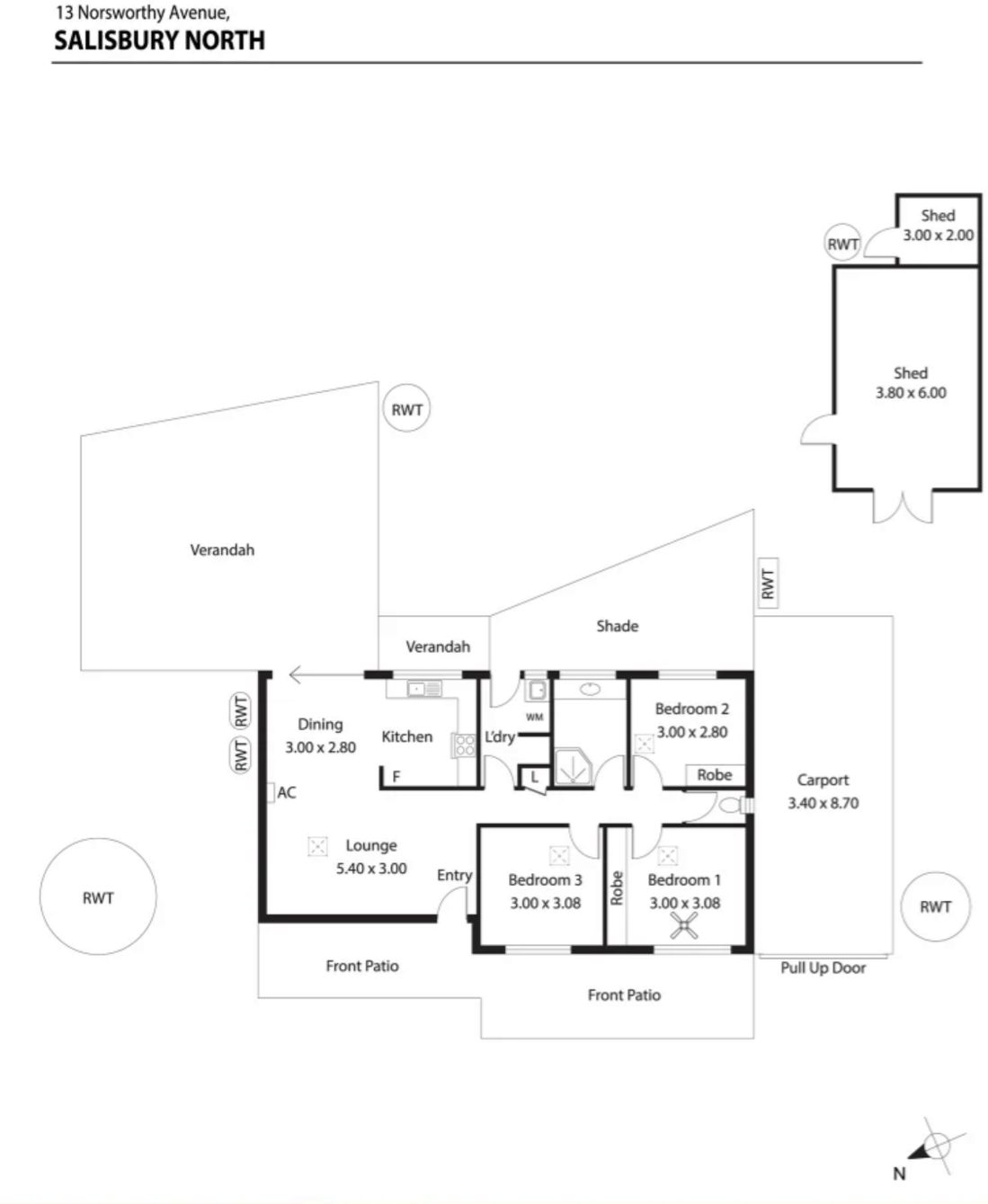
    Floorplan.png (56.91 KB, 下载次数: 135)

    Floorplan.png

    2020308235_2_1_251001_124249-w3001-h1688.jpg (321.28 KB, 下载次数: 132)

    2020308235_2_1_251001_124249-w3001-h1688.jpg

    2020308235_3_1_251001_124249-w3004-h2006.jpg (186.73 KB, 下载次数: 136)

    2020308235_3_1_251001_124249-w3004-h2006.jpg

    2020308235_4_1_251001_124248-w3000-h2003.jpg (163.75 KB, 下载次数: 119)

    2020308235_4_1_251001_124248-w3000-h2003.jpg

    2020308235_5_1_251001_124248-w3003-h2006.jpg (157.5 KB, 下载次数: 134)

    2020308235_5_1_251001_124248-w3003-h2006.jpg

    2020308235_6_1_251001_124248-w3000-h2003.jpg (79.36 KB, 下载次数: 148)

    2020308235_6_1_251001_124248-w3000-h2003.jpg

    2020308235_7_1_251001_124248-w3000-h2003.jpg (152 KB, 下载次数: 127)

    2020308235_7_1_251001_124248-w3000-h2003.jpg

    2020308235_8_1_251001_124248-w3000-h2003.jpg (147.26 KB, 下载次数: 133)

    2020308235_8_1_251001_124248-w3000-h2003.jpg

    2020308235_9_1_251001_124248-w3000-h2003.jpg (258.34 KB, 下载次数: 143)

    2020308235_9_1_251001_124248-w3000-h2003.jpg

    2020308235_10_1_251001_124248-w3000-h2003.jpg (318.56 KB, 下载次数: 123)

    2020308235_10_1_251001_124248-w3000-h2003.jpg

    BBS提醒: 请避免提前支付订金、押金等任何费用,请与对方当面沟通,确认资质并看清条款。谨防上当受骗。

    免责声明: 本网站所提供的信息,只供参考之用。本网站不保证信息的准确性、有效性、及时性和完整性。本网站及其雇员一概毋须以任何方式就任何信息传递或传送的失误、不准确或错误,对用户或任何其他人士负任何直接或间接责任。在法律允许的范围内,本网站在此声明,不承担用户或任何人士就使用或未能使用本网站所提供的信息或任何链接所引致的任何直接、间接、附带、从属、特殊、惩罚性或惩戒性的损害赔偿。

    收藏收藏 顶 踩
    回复

    使用道具 举报

    您需要登录后才可以回帖 登录 | 注册

    本版积分规则

    其他网友还看了 ...

    Copyright @ 2022 AdelaideBBS.com. All rights reserved. User Agreement

    客服号

    公众号